Skip naar de inhoud

Te koop

Wordt dit jouw nieuwe thuis?

Rodelaan 371

2272SJ VOORBURG
Rodelaan 371
Rodelaan 371
Rodelaan 371
Rodelaan 371
Rodelaan 371
Rodelaan 371
Rodelaan 371
Rodelaan 371
Rodelaan 371
Rodelaan 371
Rodelaan 371
Rodelaan 371
Rodelaan 371
Rodelaan 371
Rodelaan 371
Rodelaan 371
Rodelaan 371
Rodelaan 371
Rodelaan 371
Rodelaan 371
Rodelaan 371
Rodelaan 371
Rodelaan 371
Rodelaan 371
Rodelaan 371
Rodelaan 371
  • Wonen 99 m2
  • Bouwjaar 1974
  • Kamers 4

Interesse?

Andy Fransz

Interesse? Wil je graag een kijkje nemen of wil je gewoon meer informatie?

Super! Bel of mail ons gerust. Onze makelaar Andy Fransz staat klaar om je te helpen!

Kenmerken

Overdracht

Vraagprijs
€ 375.000 k.k.
Aangeboden sinds
6 maart 2026
Status
Beschikbaar
Aanvaarding
In overleg

Bouw

Type woning
Appartement
Soort woning
Bovenwoning
Soort bouw
Bestaande bouw
Bouwjaar
1974

Oppervlakten en inhoud

Wonen
99m2
Inhoud
317m3

Indeling

Aantal kamers
4 kamers (3 slaapkamers)
Aantal badkamers
1

Ligging

Informatie
Aan rustige weg, in woonwijk, vrij uitzicht

Energie

Energielabel
E
Isolatie
Gedeeltelijk dubbel glas
Verwarming
Blokverwarming
Warm water
Centrale voorziening

Buitenruimte

Tuin
Geen tuin

Omschrijving

Algemeen

Ben je op zoek naar een ruim appartement met een waanzinnig uitzicht op een mooie groene woonlocatie? Dan moet je dit 4 kamer appartement absoluut komen bekijken! De woning is gelegen op de 17e verdieping en heeft een groot balkon (totaal circa 29 m²) aan 2 zijden van de woning. Het woonoppervlak bedraagt een royale 99 m², er zijn 3 slaapkamers van goed formaat, een moderne en ruime half open keuken met enig inbouwapparatuur, een badkamer met douche en wastafel, een inpandige berging en er is een eigen (fietsen)berging in de onderbouw aanwezig.

De woning maakt deel uit van een goed onderhouden appartementencomplex met een beveiligde, een luxe entreehal met videofoonsysteem, liften en er is een huismeester aanwezig. De Vereniging van Eigenaren is actief en de woning is gelegen op eigen grond. Parkeergelegenheid op eigen terrein van het appartementencomplex.

Locatie en bereikbaarheid

De woning is gelegen in een groene omgeving met een leuke kinderboerderij "Hoeve Essesteijn" en het Sijtwendepark op loopafstand. Ook is ligging zeer centraal ten opzichte van de voorzieningen. Het winkelcentrum ‘Westfield Mall of the Netherlands’, diverse scholen en sportgelegenheden (voetbalvereniging Forumsport, hockeyvereniging Cartouche en Tennispark Overdam) zijn in de directe omgeving te vinden. Uitstekende verbindingen met het openbaar vervoer en de uitvalswegen (A4, A13 en A12) zijn binnen enkele autominuten te bereiken.

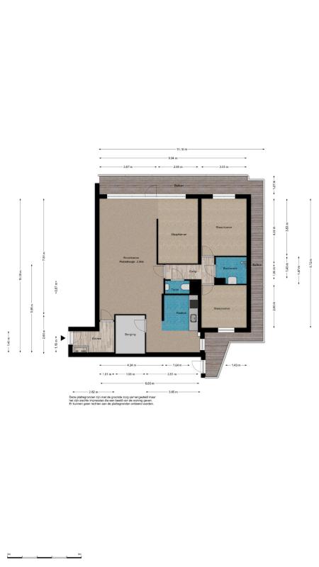
Indeling

Afgesloten entree met schuifdeuren, luxe entreehal met de brievenbussen, intercomsysteem en de huismeesterruimte. Lift of trap naar de 17e verdieping. Grote gemeenschappelijke hal, entree van het appartement, hal met de meterkast en garderoberuimte. De ruime woonkamer is door de grote ramen erg licht en biedt toegang tot het lange, aan twee zijden gelegen zonnige balkon met een prachtig uitzicht over de skyline van Den Haag. De half open keuken grenst direct aan de woonkamer en is voorzien van een hardstenen werkblad en diverse inbouwapparatuur zoals een gaskookplaat, een RVS vlakschuif afzuigkap en een combimagnetron. Ruime inpandige berging / bijkeuken met de aansluiting voor de wasmachine en droger. Slaapkamer (ca. 12 m²) grenzend aan de woonkamer en via een tussenhal toegang tot slaapkamer twee en drie beiden eveneens van goed formaat (respectievelijk 12 m² en 9 m²). De badkamer is voorzien een douche en een wastafelmeubel met spiegel. Separaat toilet voorzien van een hangend closet en een fonteintje.

In de onderbouw van het complex is een fietsenberging aanwezig. In de overdekte parkeergarage is het mogelijk een eigen vaste parkeerplaats te kopen of te huren.

Belangrijkste kenmerken

  • Bouwjaar 1974
  • Woonoppervlak 99 m²
  • 3 slaapkamers
  • Groot balkon (circa 29 m², noordwesten)
  • Grotendeels voorzien van dubbel glas
  • Eigen fietsenberging is de onderbouw
  • VVE bijdrage appartement € 234,20 per maand
  • VVE bijdrage berging € 13,27 per maand
  • Voorschot stookkosten, warm -en koud water € 190,00 per maand
  • Projectnotaris Post in Den Haag
  • Uitstekende en centrale locatie
  • Voormalige huurwoning, niet bewonersclausule van toepassing
  • Verkoopvoorwaarden Brix Makelaars van toepassing

Reageren

Meer weten over deze woning?

Stuur ons een bericht door onderstaand formulier in te vullen.