Balen van Andelplein 119
Interesse?

Interesse? Wil je graag een kijkje nemen of wil je gewoon meer informatie?
Super! Bel of mail ons gerust. Onze makelaar Andy Fransz staat klaar om je te helpen!
Kenmerken
Overdracht
- Vraagprijs
- € 375.000 k.k.
- Aangeboden sinds
- 6 oktober 2025
- Status
- Beschikbaar
- Aanvaarding
- In overleg
Bouw
- Type woning
- Appartement
- Soort woning
- Bovenwoning
- Soort bouw
- Bestaande bouw
- Bouwjaar
- 1996
Oppervlakten en inhoud
- Wonen
- 85m2
- Inhoud
- 263m3
Indeling
- Aantal kamers
- 3 kamers (2 slaapkamers)
- Aantal badkamers
- 1
Ligging
- Informatie
- In woonwijk, vrij uitzicht
Energie
- Energielabel
- B
- Isolatie
- Dakisolatie, muurisolatie, vloerisolatie, dubbel glas
- Verwarming
- Cv-ketel
- Warm water
- Cv-ketel
Buitenruimte
- Tuin
- Geen tuin
Omschrijving
Ruim en licht 3-kamerappartement met 2 balkons met eigen parkeerplaats in afgesloten garage en afzonderlijke kelderberging op centrale locatie.
Op een centrale en goed bereikbare locatie bevindt zich dit ruime 3-kamerappartement met een woonoppervlakte van 85 m², gelegen op de derde verdieping van een modern en kleinschalig, uit 1996 daterende appartementencomplex. De woning beschikt over een royale living met halfopen keuken, twee volwaardige slaapkamers en maar liefst twee buitenruimtes (een balkon en een heerlijk zonnige loggia) gelegen op het noordwesten en zuidoosten / zuidwesten – ideaal om op elk moment van de dag van de zon te genieten.
Daarnaast biedt het appartement het comfort van een eigen parkeerplaats in de afgesloten parkeergarage en is er een aparte fietsenberging. Het complex is goed onderhouden en voorzien van een beveiligde hoofdentree, een liftinstallatie en er is een actieve Vereniging van Eigenaren (VvE).
De woning is gelegen op de grens van Voorburg met Den Haag en kent een uitstekende centrale ligging ten opzichte van het openbaar vervoer (bus, tram en NS station Laan van NOI zijn loopafstand), de uitvalswegen (A12, A4 en A13 zijn binnen enkele minuten te bereiken), diverse buurtwinkels en ook de grotere winkelgelegenheden zoals aan de Julianalaan (Voorburg), de gezellige Theresiastraat (Den Haag, Bezuidenhout) of The Mall of the Netherlands zijn werkelijk perfect te bereiken.
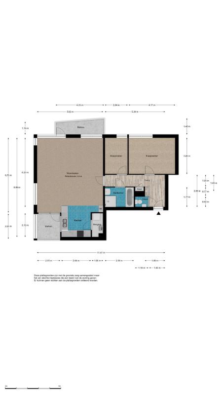
Gemeenschappelijke hoofdentree met de brievenbussen en de intercom. Lift of de trap naar de derde verdieping. Entree van het appartement, L-vormige hal met de meterkast en een toilet voorzien van een fonteintje. De ruime woonkamer telt maar liefst 40 m² en heeft door de hoekligging aan 3 zijden ramen waardoor de living bijzonder licht is. Direct aan de woonkamer liggen twee buitenruimtes (balkon en een met glazen schuiframen afsluitbaar balkon) waardoor je altijd wel een fijne plek in de zon of juist de schaduw kunt vinden, ook buiten de zomer. De halfopen keuken heeft een L-vormige opstelling en is voorzien van diverse inbouwapparatuur zoals een 4-pits gaskookplaat, een RVS afzuigkap, een vaatwasser en een oven. Direct naast de keuken ligt de handige bijkeuken met de opstelling van de CV ketel en de aansluiting voor de wasmachine en eventueel de droger. Het appartement heeft een goed bemeten hoofdslaapkamer en er is een tweede slaapkamer van prima formaat. De badkamer is voorzien van een douche, een ligbad en een vaste wastafel. In de onderbouw van het appartementencomplex is een eigen berging en een eigen parkeerplaats in de afgesloten garage aanwezig.
Kenmerken:
- Bouwjaar 1996
- Gelegen op eigen grond
- Woonoppervlakte 85 m²
- 2 buitenruimtes (balkon en een loggia)
- 2 slaapkamers
- CV combiketel dient vervangen te worden
- Houten kozijnen met HR ++ glas
- Energielabel B
- Lift aanwezig
- Eigen parkeerplaats en berging
- Rustige maar toch zeer centrale ligging nabij de grote stad
- Actieve Vereniging van Eigenaren
- VVE bijdrage € 262,85 p.m. (inclusief parkeerplaats en waterverbruik)
- Oplevering in overleg
- Niet bewonersclausule van toepassing
- Verkoopvoorwaarden Brix Makelaars van toepassing
Documenten
Reageren
Meer weten over deze woning?
Stuur ons een bericht door onderstaand formulier in te vullen.